Promociones

Promociones actuales

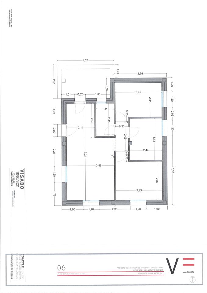
Proyecto de Obra Nueva de Viviendas Unifamiliares (Cigüenza)

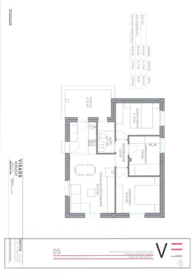
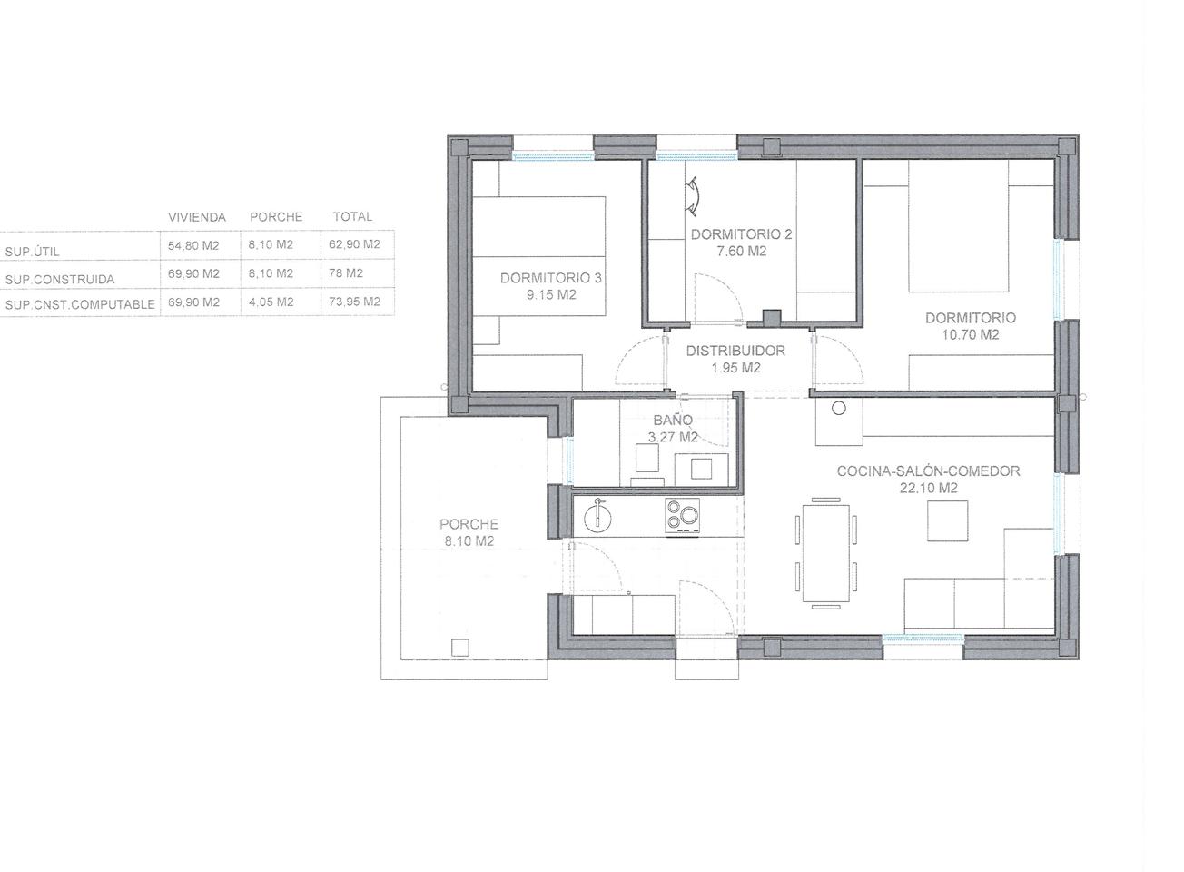
Construcción de casas en Cigüenza bajo pedido, con terreno incluido – junto a Villarcayo Precio: 177.330 € ¡Bienvenido a tu futuro hogar! Te presentamos una casa independiente de obra nueva, diseñada para ofrecerte la mejor combinación de comodidad, estilo y calidad de vida. Con una superficie de 78 m², esta vivienda es perfecta tanto como primera residencia como para di…

Más información

Promociones entregadas

Proyecto de Obra de Ampliación de la Residencia de Ancianos de Ntra. Sra. del Rosario

PROYECTO DE OBRA DE AMPLIACIÓN Proyecto de Ampliación de la Residencia de Ancianos Ntra. Sra. del Rosario en Medina de Pomar en términos de ampliación de plazas, accesibilidad y sostenibilidad, así como eficiencia energética. -EMPRESA: Residencia de Ancianos Ntra Sra del Rosario -LUGAR: Medina de Pomar (Burgos) -AÑO: 2017

Más información
Proyecto de Obra Nueva Chalet Unifamiliares (Fernan González)

PROMOCIÓN OBRA NUEVA CHALET UNIFAMILIAR Nueva construcción de tres viviendas unifamiliares en Medina de Pomar con dos o tres dormitorios (a elegir sin cargo), situadas en parcelas de 405m2 cada una (las parcelas quedan cerradas y acondicionadas). Las viviendas cuentan además con cocina, baño, salón y un gran porche (muy bien orientado). Para la construcción de estas vivien…

Más información